Garaje grande con estructura de madera - DP2023S468
Tipo de estructura: Garaje con estructura de madera y cerchas de techo diseñadas.
Superficie construida: 78 m² (840 pies cuadrados)
Tipo de cimentación: Cimentación de losa de hormigón
Ideal para: garajes para varios vehículos, talleres, almacenamiento de equipos o espacios para pasatiempos.
Detalles de la estructura
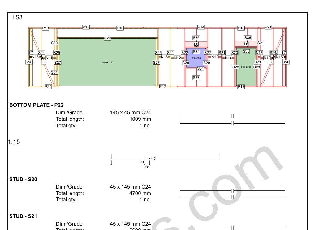
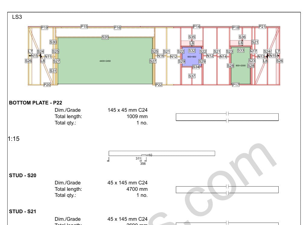
Este espacioso garaje presenta un diseño tradicional de techo a dos aguas con cerchas de ingeniería para maximizar el espacio interior y la eficiencia estructural. Sus 78 m² (840 pies cuadrados) ofrecen amplio espacio para dos o tres vehículos, además de espacio de almacenamiento o banco de trabajo. La estructura de madera con cerchas de ingeniería profesional garantiza durabilidad y estabilidad a largo plazo. Los elementos estructurales están optimizados para la disponibilidad de madera de dimensiones estándar.
Qué está incluido
Paquete completo de ingeniería estructural creado con el software con licencia MiTek Pamir:
-
Dibujos estructurales: elevaciones detalladas, plano de planta, diseño de la estructura del techo y secciones de pared que muestran todos los elementos de madera y conexiones.
-
Cálculos de carga: análisis de ingeniería completo para cargas muertas, cargas vivas, cargas de nieve y cargas de viento
-
Dibujos de producción: Especificaciones y ubicación de la placa de conexión (cuando corresponda al diseño)
-
Facturas de corte: Dimensiones y ángulos exactos para cada elemento estructural, listos para cortar
-
Lista de selección de materiales: cantidades completas de madera, especificaciones de sujetadores y requisitos de hardware
-
Disposición de la cimentación: Detalles del perímetro y la estructura de soporte con puntos de anclaje
-
Visualización 3D: Modelo 3D interactivo accesible mediante código QR para comprensión espacial
-
Medidas duales: carpetas separadas con versiones métricas (mm) e imperiales (pulgadas)
Este plano incluye todo lo necesario para la construcción. Todas las conexiones estructurales están diseñadas con una distribución de carga adecuada mediante el sistema profesional de ingeniería de madera de MiTek.
Elige tu plan
El plan estándar incluye documentación PDF completa: perfecto para constructores y contratistas.
El Plan Pro incluye archivos DWG (para AutoCAD y software CAD), archivos IFC (para aplicaciones BIM como Revit) y acceso al visor MiTek Pamir para una visualización técnica optimizada. Elija el Plan Pro si necesita importar planos a software CAD para realizar modificaciones o trabajar con flujos de trabajo BIM.