Small Cabin / Storage Shed - DP2024S749
Structure Type: Timber-frame cabin on elevated foundation
Building Area: 25m² (269 sq ft)
Foundation Type: Screw/pile or post foundation
Ideal For: Storage sheds, garden offices, workshops, tool sheds, or small studios
Structure Details
This versatile structure features a flat/low-slope roof design with an elevated foundation system. The 25m² (269 sq ft) interior provides flexible space for storage, a small workshop, garden office, or hobby room. The elevated screw/pile foundation allows for installation on uneven terrain and provides excellent ventilation beneath the structure, protecting stored items from ground moisture. The timber-frame construction ensures structural stability and durability. Structural members are optimized for standard dimensional lumber availability.
What's Included
Complete structural engineering package created with licensed MiTek Pamir software:
-
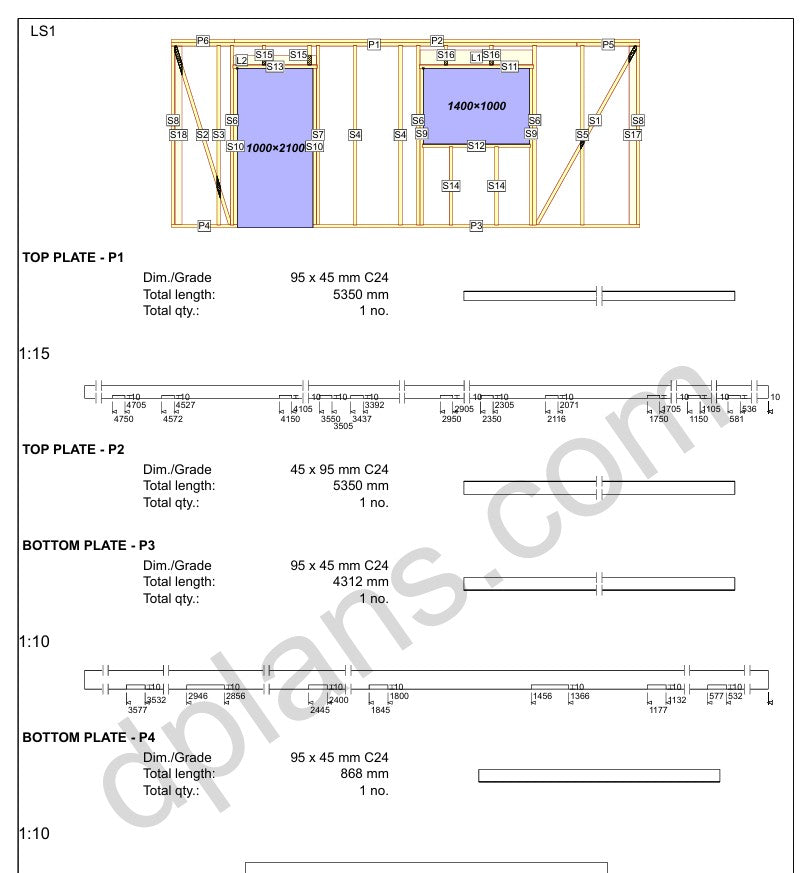
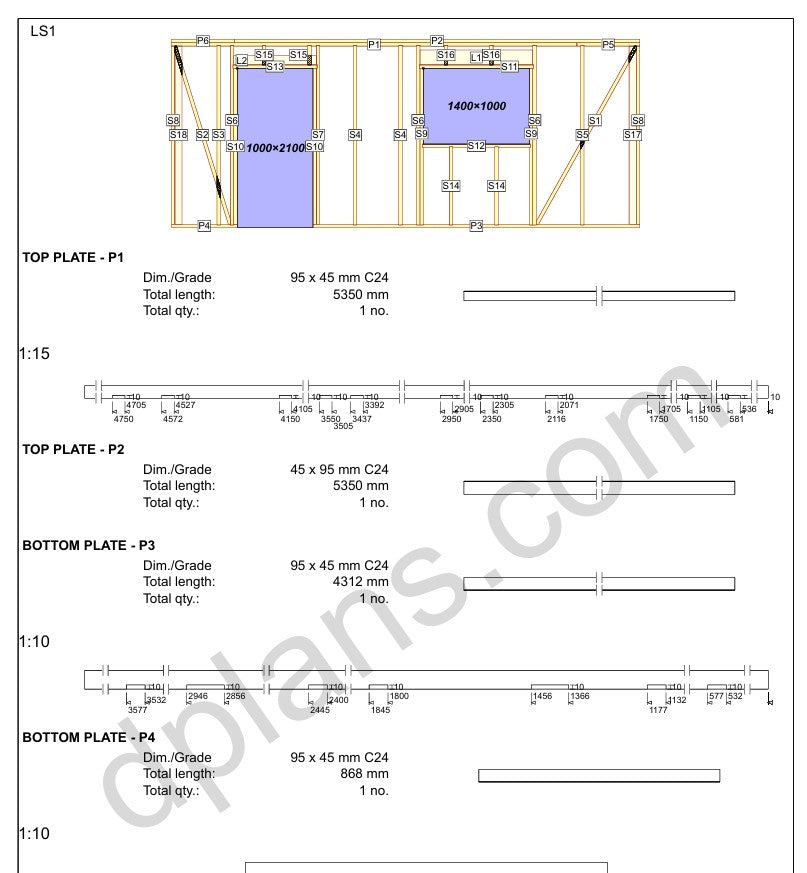
Structural Drawings: Detailed elevations, floor plan, roof framing layout, and wall sections showing all timber members and connections
-
Load Calculations: Full engineering analysis for dead loads, live loads, snow loads, and wind loads
-
Production Drawings: Connector plate specifications and placement (where applicable to the design)
-
Cutting Bills: Exact dimensions and angles for every structural member - ready for cutting
-
Material Pick List: Complete timber quantities, fastener specifications, and hardware requirements
-
Foundation Layout: Perimeter and support structure details with anchor points
-
3D Visualization: Interactive 3D model accessible via QR code for spatial understanding
-
Dual Measurements: Separate folders with metric (mm) and imperial (inches) versions
This plan provides everything needed for construction. All structural connections are engineered with proper load distribution using MiTek's professional timber engineering system.
Choose Your Plan
Standard Plan includes complete PDF documentation - perfect for builders and contractors.
Pro Plan adds DWG files (for AutoCAD and CAD software), IFC files (for BIM applications like Revit), and access to MiTek Pamir viewer software for enhanced technical viewing. Choose Pro if you need to import plans into CAD software for modifications or work with BIM workflows.